22/05/2023
Al elegir la mesa de comedor que reinará en nuestro salón, a menudo nos dejamos llevar por su estilo y los materiales que la componen: madera, cristal, metal, microcemento… Si bien estos factores son cruciales para la estética de nuestro hogar, hay consideraciones mucho más prácticas que determinarán la verdadera comodidad y funcionalidad de este mueble central. La pregunta fundamental es: ¿cuánto espacio hay que dejar por comensal en una mesa para garantizar que todos disfruten de una experiencia agradable y sin estrecheces?
No se trata solo de que la mesa sea bonita, sino de que sea un mueble que invite a la conversación, a compartir y a disfrutar sin limitaciones. Para lograrlo, es imprescindible entender las dimensiones ideales, tanto de la mesa en sí como del espacio que rodea a cada invitado y al conjunto. Un comedor bien planificado es sinónimo de veladas exitosas y momentos inolvidables.

- Más Allá del Estilo: La Importancia de las Medidas y el Espacio
- El Espacio Ideal por Comensal: Clave para la Comodidad
- Dimensiones de Mesas Comunes y su Capacidad
- Tipos de Mesas para Cada Necesidad y Espacio
- El Entorno de la Mesa: Circulación y Confort
- Preguntas Frecuentes sobre la Elección de tu Mesa de Comedor
Más Allá del Estilo: La Importancia de las Medidas y el Espacio
Antes de enamorarte de un diseño, lo primero que debes hacer es medir el espacio disponible en tu casa, tanto el ancho como el largo de la habitación. Este paso, aunque parezca obvio, es un error común que puede llevarte a adquirir una mesa desproporcionada. Las medidas de tu comedor son el punto de partida innegociable para una elección acertada.
Si tu comedor es amplio, las posibilidades se expanden. Un espacio cuadrado puede coronarse con una mesa redonda, creando un ambiente simétrico y acogedor. Si es rectangular, una gran mesa alargada al estilo medieval puede ser la opción ideal para albergar a muchos comensales, desde seis hasta diez o doce invitados. En este sentido, las mesas extensibles también se presentan como una solución atractiva y versátil para adaptarse a diferentes ocasiones y número de personas.
Además del tamaño de la mesa, es vital considerar su altura y la de las sillas. La altura estándar de una mesa de comedor suele oscilar entre 70 y 75 cm, lo que asegura suficiente espacio para las piernas y una postura cómoda al comer. En cuanto a las sillas, la medida estándar se sitúa entre 45 y 50 cm. Una buena combinación de ambas alturas es fundamental para el confort.
El Espacio Ideal por Comensal: Clave para la Comodidad
Para dimensionar correctamente la mesa, debes visualizarla compuesta por dos zonas principales: el espacio individual para cada comensal y la zona de acceso compartido en el centro.
El Espacio Individual: Tu Metro Cuadrado de Placer
Cada comensal necesita un área suficiente para su vajilla, cubertería, plato de pan y, lo más importante, para moverse libremente sin chocar con el vecino. El ancho óptimo para que una persona coma cómodamente es de unos 76,2 cm, siendo 61 cm el espacio mínimo que se debe considerar. En cuanto a la profundidad o largo para el servicio de cada persona, lo óptimo es 45,7 cm, con un mínimo aceptable de 40,6 cm.
La Zona de Acceso Compartido: Un Espacio Vital
El centro de la mesa no es solo un lugar para la decoración; es la zona de acceso compartido. Aquí se depositan fuentes, bandejas con alimentos, elementos decorativos e incluso el menaje extra. El tamaño de esta zona dependerá de la cantidad de objetos que planees colocar, pero ten en cuenta que el mínimo es de 25,4 cm y el máximo es de 45,7 cm. Si la mesa es muy ancha, este espacio se puede asignar proporcionalmente, la mitad para cada lado de los comensales.
Dimensiones de Mesas Comunes y su Capacidad
Conocer las medidas más demandadas te ayudará a visualizar qué tipo de mesa encaja mejor con tus necesidades y el tamaño de tu hogar:
- Mesas de comedor de 120 cm: Ideales para espacios reducidos, perfectas para la funcionalidad sin sacrificar el estilo.
- Mesas de comedor de 140 cm: Combinan versatilidad con amplitud, adaptándose a diversas decoraciones.
- Mesas de comedor de 160 cm: Perfectas para familias que buscan un punto medio entre espacio y comodidad, acogiendo a más comensales.
En cuanto a las medidas exactas más habituales en muchos hogares, destacamos:
- Mesas de comedor de 150 x 90 cm: Esta proporción equilibrada es una elección preferida, ofreciendo suficiente espacio para una cena cómoda.
- Mesas de salón comedor de 180 x 100 cm: Con un espacio generoso, son ideales para reuniones familiares y cenas con amigos.
- Mesas de comedor de 200 x 90 cm: Esta medida elongada aporta un toque moderno y da sensación de amplitud.
- Mesas de comedor de 200 x 100 cm: Una opción favorita para quienes buscan una mesa espaciosa y con presencia.
- Mesas de comedor de 240 x 100 cm: Para hogares grandes, son el epítome del lujo y la amplitud, perfectas para grandes reuniones.
Medidas Recomendadas de Mesas de Comedor por Capacidad y Forma
| Forma de la Mesa | Número de Comensales | Largo/Diámetro Óptimo | Ancho Óptimo |
|---|---|---|---|
| Rectangular | 6 (cómodos) | 243.8 cm | 137.2 cm |
| Cuadrada | 4 | Individual: 76.2 cm | Individual: 46.7 cm |
| Redonda | 4 | 152.4 cm (diámetro) | - |
| Redonda | Más de 4 (óptimo servicio) | 182.9 cm (diámetro) | - |
Nota: Para mesas cuadradas y redondas, el espacio individual por comensal sigue siendo 76.2 cm de ancho y 45.7 cm de profundidad (óptimo), con mínimos de 61 cm y 40.6 cm respectivamente. En mesas cuadradas, la zona de acceso compartido suele ser menor que en las rectangulares. En mesas redondas, para cuatro personas, un diámetro de 120 cm puede ser suficiente, aunque 152.4 cm ofrece mayor confort.
Tipos de Mesas para Cada Necesidad y Espacio
Más allá de las dimensiones estándar, existen soluciones específicas para optimizar el espacio y la funcionalidad:
- Mesas de comedor extensibles: Son una propuesta excelente si tu salón tiene medidas concretas y no quieres que la mesa ocupe demasiado espacio de forma permanente, pero necesitas capacidad para recibir visitas. Permiten optimizar el espacio al máximo y modelos como las mesas redondas extensibles son muy populares.
- Mesas para comedor a medida: Si tienes un loft o un espacio reducido con formas irregulares, una mesa a medida se adaptará perfectamente, garantizando el aprovechamiento de cada centímetro.
- Mesas de salón comedor grandes: Si cuentas con el espacio suficiente, una mesa grande y esbelta no solo garantiza la funcionalidad para muchos comensales, sino que también aporta una gran belleza y presencia al espacio.
- Mesas de salón plegables: La alternativa perfecta para estudios pequeños o como mueble complementario. Garantizan el aprovechamiento del espacio y la posibilidad de reunir a todos en ocasiones especiales.
El Entorno de la Mesa: Circulación y Confort
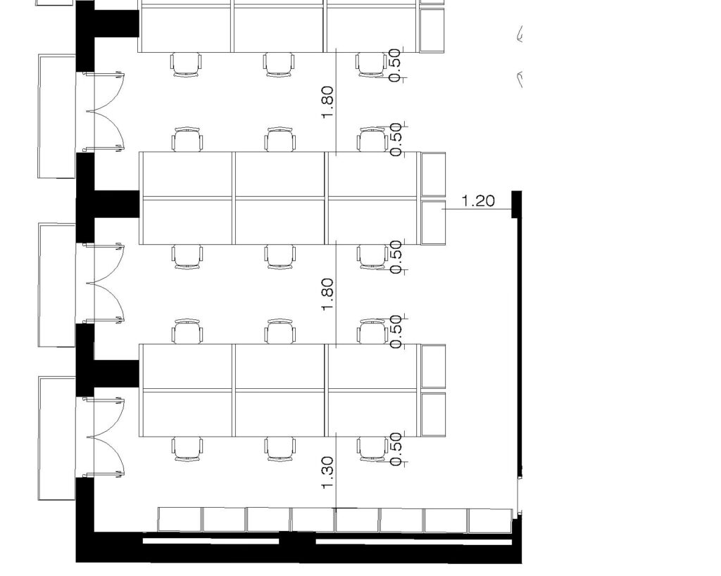
No solo la mesa y el espacio por comensal importan. También debes considerar el espacio que hay alrededor de la mesa. Tanto si la mesa es rectangular, cuadrada o redonda, debe haber una distancia mínima de 121,9 cm entre el canto del tablero de la mesa y la pared o cualquier obstáculo físico cercano. Esto es crucial para no interferir con la holgura de la silla ni con la libre circulación alrededor de la mesa.
En casos donde el espacio es limitado, se puede reducir esta distancia a entre 91,4 y 106,7 cm, aunque esto implicará que tus invitados tengan que dejar paso o arrimar la silla para permitir el tránsito cómodamente por detrás. Priorizar esta distancia asegura que el comedor no solo sea un lugar para comer, sino un espacio funcional y fácil de transitar.
Preguntas Frecuentes sobre la Elección de tu Mesa de Comedor
¿Cuál es la altura ideal para una mesa de comedor?
La altura estándar de una mesa de comedor oscila entre 70 y 75 cm. Esta medida asegura que haya suficiente espacio para las piernas y que la superficie esté a una altura cómoda para comer y socializar.
¿Cuánto espacio mínimo necesito para cada comensal?
El espacio mínimo recomendado para que una persona coma cómodamente es de 61 cm de ancho y 40,6 cm de profundidad. Sin embargo, para un confort óptimo, se aconseja 76,2 cm de ancho y 45,7 cm de profundidad.
¿Qué es la zona de acceso compartido en una mesa?
Es el espacio central de la mesa, donde se colocan fuentes, bandejas, elementos decorativos y otros utensilios que son accesibles para todos los comensales. Su ancho mínimo debe ser de 25,4 cm y puede llegar hasta 45,7 cm, dependiendo de lo que se vaya a colocar.
¿Las mesas extensibles son una buena opción para espacios pequeños?
Sí, las mesas extensibles son excelentes para optimizar el espacio en salones pequeños o medianos. Permiten tener una mesa compacta para el día a día y ampliarla cuando recibes visitas, maximizando la funcionalidad sin comprometer el estilo.
¿Qué distancia debe haber entre la mesa y la pared?
Para una circulación cómoda y para que las sillas no estorben al levantarse o sentarse, se recomienda una distancia mínima de 121,9 cm entre el borde de la mesa y la pared más cercana. En espacios muy reducidos, se puede aceptar entre 91,4 y 106,7 cm, aunque esto limitará un poco la movilidad.
Como has podido ver, al elegir la mesa de comedor adecuada, es esencial considerar no solo el estilo y los materiales, sino también las medidas del espacio disponible y la funcionalidad deseada. La forma y el tamaño del comedor influyen directamente en la elección de la mesa, y opciones como las mesas extensibles ofrecen una gran versatilidad para adaptarse a diferentes ocasiones y número de invitados.
La comodidad de los comensales es primordial, por lo que medir el espacio individual y la zona de acceso compartido es crucial. Además, dejar suficiente espacio alrededor de la mesa es fundamental para permitir una circulación cómoda y evitar interferencias con las sillas y las paredes. Al tener en cuenta todos estos factores, podrás crear un ambiente acogedor y funcional que no solo sea estético, sino también perfecto para cualquier reunión. ¡Esperamos haber aclarado todas tus dudas y que ahora estés listo para tener un comedor con mucho estilo y, sobre todo, mucha comodidad!
Si quieres conocer otros artículos parecidos a Mesa de Comedor: Espacio Ideal por Comensal puedes visitar la categoría Gastronomía.
